A pochi passi da Piazza Cavana e a soli sette minuti a piedi da Piazza Unità d’Italia, Palazzo Haggi rappresenta una delle operazioni immobiliari più prestigiose nel cuore di Trieste. Situato nell’esclusivo rione di San Vito, il palazzo, composto da 22 unità abitative, sarà oggetto di una completa ristrutturazione con adeguamento antisismico, nel pieno rispetto dell’architettura storica e dell’identità artistica dell’edificio. La facciata in stile neo-medievale verrà restaurata e riportata al suo antico splendore, valorizzando i decori storici con un intervento conservativo di altissimo pregio. Ogni appartamento sarà dotato delle tecnologie più avanzate per garantire comfort abitativo ed efficienza energetica, senza rinunciare al fascino della tradizione. L’intervento prevede un sistema impiantistico all’avanguardia: pompa di calore aria-acqua inverter ad alta efficienza e caldaia a condensazione per la produzione di ACS. Il riscaldamento sarà a pavimento e raffrescamento tramite split in esecuzione silenziata. E’ previsto un impianto fotovoltaico sul tetto, per un miglioramento sostanziale dell’efficienza energetica. I serramenti saranno in legno con doppio vetro: bianchi all’interno e noce all’esterno, per un’estetica raffinata e durevole. Inoltre, l’acquisto di queste unità consente di beneficiare delle agevolazioni fiscali per l’acquisto di immobili ristrutturati, rendendo l’investimento ancora più vantaggioso.
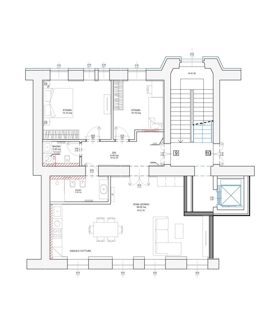
APPARTAMENTO QUINTO PIANO CON TERRAZZA
Questa tipologia di appartamento si compone di un atrio d’ingresso, una zona giorno con angolo cottura e bagno di servizio, un’ampia camera matrimoniale, una camera singola e un bagno doccia completo. L’appartamento comprende anche una terrazza privata di 48 mq sul tetto dell’edificio con meravigliosa vista mare e sui tetti della città.
SEDE DI TRIESTE
- Via Valdirivo 40, 34122
- 040 9820498
SEDE DI UDINE
- Via Bartolini 18, 33100
- 0432 1140382
CONTATTI
- +39 3801564642
- realestate@veruskachignoli.com
